Secured Loan 50% ROI

Secured Loan 50% ROI

location_on Gran Londres Reino Unido

Por favor toma nota:
Invirtiendo en empresas jóvenes lleva riesgos como falta de liquidez, falta de dividendos, pérdida de inversión y dilución. Debería hacer parte de un portafolio diversificado. La plataforma está dirigida únicamente a inversores sofisticados que entienden estos riesgos y pueden hacer sus propios decisiones cuando están invirtiendo. Esta información no ha sido aprobada como una promoción financiera y Ud. tiene que hacer su propia diligencia debida.

Resumen corto

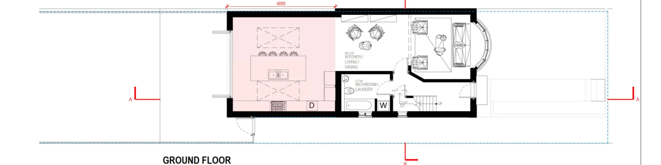
This is a secured loan note. Invest from £10,000 into the refurbishment of full house refurbishment in HA8, London. Choose monthly interest income or a lump-sum payout. Returns: 50% ROI in 5 months, secured by legal charge & personal guarantee.

Puntos claves

  • 50% ROI in just 5 months
  • Minimum investment from £10,000
  • Monthly income or lump-sum payout
  • Secured by legal charge
  • Personal guarantee from directors

Resumen

Objetivo €35,000
Mínimo €10,000
Inversión recaudada €0
Rondas anteriores €0
Fase Generando beneficios
Función del inversor Any

Haga una pregunta
¿Tienes alguna pregunta sobre este proyecto?

Propuestas Similares

Loading…
Loading the web debug toolbar…
Attempt #